Exhibit 10.10.2

LEASE AGREEMENT

 

               Suite: 300-ext
               Sq Ft: 3060
               $/Sq Ft: 19.50

THIS LEASE AGREEMENT (this “Lease”) is made effective this 24th day of August, 2007, by and between Floyd Smith Office Park, LLC, as landlord (“Landlord”), and Nexxus Lighting, as tenant (“Tenant”).

FOR AND IN CONSIDERATION of the mutual agreements contained herein, Landlord and Tenant agree as follows:

1. DEFINITIONS. Capitalized terms appearing in this Lease, unless defined elsewhere in this Lease, shall have the following definitions:

a. “Additional Rent” shall mean all sums of money in addition to Base Rent which shall become due from Tenant under this Lease.

b. “Building” shall mean that certain multi-story office building having a street address of 124 Floyd Smith Drive, Charlotte, NC 28262 and located on the Land.

c. “Common Areas” shall mean all areas, improvements, space and special services within the Building or on the Land provided by Landlord from time to time in its sole discretion for the common or joint use and benefit of all tenants, customers and invitees of the Building, including, without limitation, any parking areas, access roads, service drives, service areas, driveways, entrances and exits, retaining walls, landscaped areas, truck serviceways, loading docks or ramps, pedestrian walkways, overstreet walkways, connecting malls, atriums, walls, ceilings, patios, courtyards, garden areas, plaza areas, park areas, concourses, ramps, sidewalks, corridors, washrooms, signs, maintenance buildings, utility buildings, hallways, lobbies, elevators, elevator foyers, escalators, stairs, common window areas, and trash, garbage or rubbish areas.

d. “Land” shall mean the real property upon which the Building is situated as more particularly described on Exhibit A attached hereto and incorporated herein.

e. “Net Useable Area” shall mean the number of square feet of enclosed floor area within the Building (or any portion thereof) intended for the exclusive use by the tenant or occupant thereof measured from the outside finished surface of the exterior walls or permanent outer building walls, and from the mid-point of any interior or party. As of the execution date of this Lease, the Total Useable Area of the Building is 35,492 square feet.

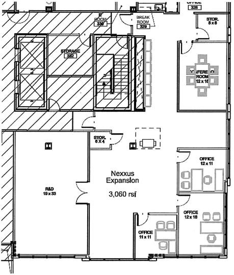
f. “Premises” shall mean the space shown cross-hatched on the floor plan attached hereto as Exhibit B and incorporated herein.


g. “Rules and Regulations” means the rules and regulations adopted by Landlord for the Building, the Land and the Common Areas and attached hereto as Exhibit C and incorporated herein, as well as any other rules and regulations which Landlord may adopt in the future for the Building, the Land and the Common Areas.

2. PREMISES. Landlord hereby leases to Tenant, and Tenant hereby leases from Landlord, upon the terms and conditions and for the purposes set forth in this Lease, the Premises.

3. TERM.

a. This Lease shall commence on upon signed certificate of occupancy (“Commencement Date”), and shall continue for an initial term of 60 months (“Initial Term”), terminating at midnight on the last day of the 60th month unless modified or earlier terminated pursuant to the terms hereof.

4. BASE RENT.

a. During the Term, Tenant shall pay annual Base Rent in advance, in twelve (12) equal monthly installments $4,972.50, on or before the first (1st) day of each calendar month during the Term, without notice, deduction, demand, abatement, counterclaim or set off, at the rates set forth below. Base Rent for any partial month shall be paid in advance and prorated based on the number of days in such partial calendar month. The first (1st) payment of Base Rent shall be due and payable on or before the execution of this Lease. Base Rent, Additional Rent and all other sums of money due from Tenant hereunder shall be collectively referred to hereinafter as “Rent” Additional Rent shall be due five (5) days after demand unless provided otherwise herein. Tenant shall be give one (1) month free rent.

 

Term

   Rental Rate    Monthly Rate    Annual Rent
2007    2008    4,972.50    59,670.00
2008    2009    5,121.67    61,460.10
2009    2010    5,275.32    63,303.90
2010    2011    5,433.58    65,203.01
2011    2012    5,596.59    67,159.10

b. Checks for all Rent shall be made payable to Landlord and mailed or delivered to the address set forth in Section 32 below or such other address as Landlord may designate to Tenant in writing. To defray administrative and handling expenses, Tenant agrees to pay an additional charge of Fifty and No/100 Dollars ($50) for each returned check. If any payment of Rent is not received by Landlord when due, then Tenant shall pay Landlord the greater of (i) five percent (5%) of the late Rent: or (ii) Two Hundred Fifty and No/00 Dollars ($250.00). In addition, if any payment of Rent is not received within ten (10) days of when due, such late Rent shall bear interest at the greater of ten percent (10%) per annum, compounded monthly, or the maximum rate permitted under law, from the due date of such Rent until such late Rent and all interest accrued thereon is paid in full. Tenant acknowledges that the aforementioned late charge and interest are in addition to Landlord’s other rights and remedies available under this Lease, at law or in equity, and that such late charge and interest shall in no way limit Landlord’s other rights and remedies. If Landlord shall at any time

 

2


accept any such Rent or other sums after the same shall become due and payable, such acceptance shall not excuse a delay upon subsequent occasions, or constitute or be construed as a waiver of any of Landlord’s rights hereunder, at law or in equity.

5. ADJUSTMENTS IN BASE RENT.

a. Beginning with the first (1st) day of the thirteenth (13th) full calendar month following the Commencement Date and annually thereafter during the entire Term (the “Adjustment Dates”), a cost of living adjustment shall be made to Base Rent of 3%.

6. COMMON AREAS. Subject to the terms and conditions of this Lease and the Rules and Regulations, Tenant and its employees and invitees shall have the non-exclusive right to use, in common with other tenants and occupants of the Building, the Common Areas, as they may be designated by Landlord from time to time. Landlord or its successors or assigns may change or modify the size, use, shape, location or nature of any of the Common Areas, or eliminate them altogether, all without any liability to Tenant. There is 4762 sq ft of Common area at the time of this lease signature.

7. UTILITIES AND OTHER SERVICES.

 

  a. Landlord agrees to furnish the following services:

 

  i. Hot and cold water at those points of supply provided for general use of all the tenants in the Building.;

 

  ii. Central heat and air conditioning sufficient for the comfortable occupancy of the Premises; provided, however, heating and air conditioning service at times other than during “Normal Business Hours” for the Building (which are 8:00 a.m. to 6:00 p.m., Monday through Friday, and 8:00 a.m. to 1:00 p.m. on Saturday, exclusive of normal business holidays) shall be furnished only on seventy-two (72) hours advance written request by Tenant to Landlord. Tenant shall bear the entire cost of such additional service as such costs are determined by Landlord from time to time. If Tenant shall use any equipment in the Premises which affects the temperature otherwise maintained by the central heating and air conditioning system, then Landlord shall have the right, in its sole discretion, to install supplemental air conditioning units and the cost thereof, including the cost of installation, maintenance and operation of such units, shall be paid by Tenant to Landlord upon demand.;

 

  iii. Reasonable janitorial service, Monday through Friday only, exclusive of normal business holidays and

 

3


  iv. Facilities to provide electricity for routine lighting and the operation of general office equipment. Tenant shall not use any electrical equipment which in Landlord’s opinion will overload the Building’s electrical systems or circuits.

b. Landlord shall have the right to require Tenant to separately meter all non-standard or additional utilities and any or all of the utilities set forth above, in which case Tenant shall pay, prior to delinquency and directly to the appropriate utility company, all costs and expenses of such utility services, including all hook-up, user and tap fees and all other similar fees and charges.

c. Landlord shall not be obligated to furnish any services or utilities other than as set forth in this Section 7; provided, however, if Landlord elects to furnish additional services or utilities, and the Tenant agrees to accept them for the Premise, then Tenant shall pay Landlord the costs of such additional services or utilities, or Tenant’s pro-rata share thereof, as determined by Landlord and presented to the Tenant as a signed and agreed to addendum to the Lease. Notwithstanding the foregoing, Landlord shall have the right to interrupt any utilities or other services provided for in this Section 7 for such periods of time as Landlord deems necessary for repairs, alterations and improvements, and Landlord shall not be responsible for the stoppage or interruption of any such utilities or other services and no such interruption shall result in an abatement of Rent. The failure by Landlord to furnish, or the interruption or termination of such utilities or other services in whole or in part resulting from causes beyond the reasonable control of Landlord (including, without limitation, Force Majeure (as defined below) shall not render Landlord liable in any respect or be construed as an eviction of Tenant, or work an abatement of Rent, or relieve Tenant from any of its obligations hereunder. If Tenant fails to pay for any utilities or services provided by Landlord hereunder within 3 calendar days of when the invoice for utilities/services is due, then Landlord shall have the right, without any notice to Tenant and in addition to Landlord’s other rights and remedies hereunder, to discontinue any or all of such utilities or services.

8. TAXES AND ASSESSMENTS. Landlord shall pay all ad valorem taxes assessed on the Land and/or the Building. Tenant shall pay, prior to delinquency, all taxes, assessments, impositions and charges assessed against or attributable to Tenant’s use and occupancy of the Premises, and assessed against all personal property, equipment, inventory and trade fixtures located within the Premises and owned by the Tenant. Tenant shall pay Landlord upon demand all taxes and assessments and other governmental impositions and charges of every kind and nature whatsoever, extraordinary as well as ordinary, whether or not now customary or within the contemplation of the parties hereto, which are levied upon or measured by the rental or any other sum payable hereunder, including, without limitation, any excise tax levied by any governmental body with respect to the receipt of such rental or such other sum. Any taxes, assessments, impositions or charges assessed with respect to the Land, the Premises or the Building as a result of alterations, additions or improvements to the Premises made by, for or at the direction of Tenant shall be reimbursed by Tenant to Landlord upon receipt by Tenant of written demand therefore from Landlord.

 

4


9. USE OF THE PREMISES. Tenant shall continuously use and occupy the Premises only for general business office purposes and for no other purpose. Tenant shall, at its own cost, promptly comply with all applicable laws, rules, regulations and ordinances with respect to the use and occupancy of the Premises. Tenant shall comply with, and shall cause its employees, invitees, customers and agents to comply with, all Rules and Regulations, and Landlord shall have no liability to Tenant for the non-compliance by other tenants and occupants of the Building of the Rules and Regulations however, Landlord shall have a duty to endeavor to cause all other tenants to comply with the Buildings Rules and Regulations to the best of their ability. Tenant shall not use or permit the use of the Premises for any purpose that is illegal, immoral or improper, or is in violation of any Rule or Regulation or any applicable legal, governmental or quasi-governmental requirement, law, ordinance or rule, or that, in Landlord’s opinion, creates a nuisance, disturbs any other tenant of the Building or injures the reputation of the Building. Tenant acknowledges and agrees that Landlord has made no representation or warranty (either express or implied) as to the suitability of the Premises for Tenant’s intended use of the Premises.

10. PARKING. During the Term, Tenant shall have the non-exclusive right to use, in common with Landlord and other tenants and occupants of the Building and their respective guests, employees and invitees, the non-reserved common automobile parking areas, driveways and footways located adjacent to the Building, as such areas are designated and/or modified by Landlord from time to time in its sole discretion. Landlord shall have the right to reserve parking spaces as it elects and condition the use thereof on such terms as it elects, all in its sole discretion. Tenant shall always have a minimum of fifteen (15) parking spaces in reasonable proximity to the building available to the Tenant for its employees and visitors.

11. MAINTENANCE BY LANDLORD. Landlord shall be responsible for maintaining and repairing the roof, foundations, exterior walls, all structural parts of the Building and all electrical, plumbing and heating, air conditioning and ventilation systems not exclusively serving the Premises including all common areas. Landlord shall not be responsible for any inconvenience or annoyance to Tenant caused by any such repairs or maintenance, and Tenant shall not reduce or withhold any portion of any Rent payment without a prior final judicial determination of Tenant’s right to do so. However, Landlord shall diligently endeavor to avoid interrupting service for maintenance during the buildings operating hours. In the event any of the foregoing repairs or maintenance is required because of any act or omission of Tenant or its employees, agents, invitees or representatives, then Tenant shall pay Landlord upon demand all costs and expenses incurred by Landlord in performing such repairs or maintenance. Neither Landlord nor its agents have made any representations or warranties (either express or implied) with respect to the Premises or the condition thereof, and Tenant accepts the Premises in “AS IS” and “WHERE IS” condition. Tenant agrees that, by leasing the Premises, Tenant has examined the Premises and has approved all matters concerning the Premises which Tenant deems material to Tenant’s leasing and use of the Premises. Landlord shall have no obligation to make any improvements, alterations, repairs or maintenance to the Premises prior to or during the Term except as specifically set forth herein.

 

5


12. ALTERATIONS.

a. Tenant shall not make any alterations, additions or improvements to any portion of the Premises, either inside or outside, without Landlord’s prior written consent in each instance. Upon any request by Tenant to make any alterations, additions or improvements, Landlord reserves the right to require Tenant to submit to Landlord plans and specifications for Landlord’s approval. Any alterations, additions or improvements (except for movable equipment and furniture owned by Tenant) installed in the Premises by or on behalf of Tenant shall, at Landlord’s option, become a part of the Premises and Landlord’s property upon the expiration or earlier termination of this Lease unless otherwise stated by Landlord in writing; provided, however, Landlord shall have the right to require Tenant to remove any such alteration, addition or improvement at Tenant’s expense upon the expiration or earlier termination of this Lease. In the event that Landlord so elects, and Tenant fails to remove such alteration, addition or improvement, Landlord may remove such alteration, addition or improvement at Tenant’s cost, and Tenant shall pay Landlord on demand the cost of restoring the Premises to the condition it existed as of the Commencement Date, ordinary wear and tear excepted. Tenant shall reimburse Landlord upon demand for all costs and expenses incurred by Landlord in repairing or replacing any damage to the Building, Premises or Common Areas caused by Tenant or Tenant’s agents, employees, invitees, or visitors.

b. If any such alterations, additions or improvements are consented to by Landlord, Tenant, at its sole cost and expense, shall perform such work in a good and workmanlike manner, and shall obtain all necessary governmental permits and certificates necessary for the commencement and completion of such alterations, additions and improvements, and shall cause such alterations, additions and improvements to be performed in compliance therewith and with all applicable laws, ordinances, requirements, orders, rules and regulations.

13. ASSIGNMENT AND SUBLETTING. Tenant shall not assign or otherwise transfer this Lease or sublet any or all of the Premises without Landlord’s prior written consent, which consent Landlord may withhold in its sole discretion. Such consent shall not be unreasonably withheld. The sale, transfer or issuance of the stock, membership interest or partnership interest of Tenant shall be deemed an assignment of this Lease which shall require Landlord’s written consent, which shall not be unreasonably withheld. If Landlord consents to any such assignment, sublet or transfer, (i) Tenant shall not be released from any obligations or liabilities under this Lease,; (ii) Landlord shall receive all sums and other consideration paid or payable to Tenant by such assignee, transferee or subtenant,; and (iii) Tenant shall reimburse Landlord for all costs and expenses incurred by Landlord in reviewing any such request. The acceptance of Rent by Landlord shall not be deemed to be a consent by Landlord to any such assignment, sublet or other transfer, nor shall the same be deemed a waiver of any right or remedy of Landlord under this Lease, at law or in equity. Consent to one assignment or sublease by Landlord shall not be deemed a consent to future assignments or subleases.

14. DAMAGE AND LOSS. Tenant shall use the Premises and all facilities of the Premises at Tenant’s risk. Landlord shall not be liable to Tenant or Tenant’s employees, licensees, invitees or guests or any other person for any loss, injury or damage to any property or person occasioned by theft, Force Majeure or any other cause beyond the control of Landlord, whether or not due to negligent acts or omissions of Tenant or Tenant’s employees, licensees, invitees or guests or by any other third parties. All property

 

6


placed on, in or about the Premises by, at the direction of, or with the consent of Tenant or its employees, agents, licensees or invitees shall be at the risk of Tenant or the owner thereof, and Landlord shall not be liable for any loss of or damage to said property resulting from any cause whatsoever.

15. INSURANCE.

a. Throughout the Term, Tenant shall maintain, at its own expense, the following types of insurance;

 

  i. commercial general public liability insurance, which shall include coverage for personal liability, contractual liability, Tenant’s legal liability, bodily injury (including death) and property damage, all on an occurrence basis, with respect to the business carried on from the Premises and Tenant’s use and occupancy of the Premises in an amount not less than $1,000,000.00 per occurrence, with an umbrella liability policy of $3,000,000.00 in excess of said liability insurance, with Landlord, Landlord’s mortgagee (if any) and Landlord’s designees named as additional insureds thereunder;

 

  ii. special extended coverage form property damage insurance with respect to Tenant’s property, equipment, inventory and fixtures located in or about the Premises, at the full replacement cost thereof;

 

  iii. worker’s compensation insurance as required by law; and

 

  iv. any other insurance which Landlord reasonably requires.

b. All such insurance policies shall:

 

  i. provide that they shall not be canceled or the coverage reduced without thirty (30) days prior written notice to Landlord and Landlord’s designees and mortgagee (if any);

 

  ii. provide that such insurance shall be primary with respect to any policies carried by Tenant and that any coverage by Landlord shall be excess insurance;

 

  iii. be issued by insurance companies authorized and licensed to do business in the State where the Premises are located and approved by Landlord, with a policy holders rating of no less than “A-VIII” in the most current edition of Best’s Insurance Reports; and

 

  iv. contain a waiver of subrogation endorsement acceptable to Landlord; and

 

7


  v. contain deductible amounts acceptable to Landlord, but in no event greater than $5,000.00.

c. A copy of each insurance policy required to be maintained hereunder shall be delivered to Landlord prior to the Commencement Date and not less than thirty (30) days prior to any renewal of such insurance policy. If Tenant fails to procure any of the insurance required under this Section 15 and fails to maintain the same in full force and effect continuously during the Term, then Landlord shall have the right to obtain such insurance, and Tenant shall immediately reimburse Landlord for all costs and expenses of obtaining such insurance.

d. Anything in this Lease to the contrary notwithstanding, Landlord and Tenant each hereby waive any and all rights of recovery, claims, actions or causes of action against the other, its agents, officers, or employees, for any loss or damage that may occur to the Premises or a part thereof, or any improvements thereto, or any personal property of such party therein, by reason of fire, the elements, or any other cause which is insured against under the terms of the insurance policies referred to in this Section 15, regardless of cause or origin, including negligence of the other party hereto, its agents, officers, or employees. All insurance policies carried with respect to this Section 15, if permitted under applicable law, shall contain a provision whereby the insurer waives all rights of subrogation against Landlord and Tenant.

16. INDEMNIFICATION. Tenant agrees to indemnify, defend and hold Landlord and its employees, agents, officers or representatives harmless from and against any and all suits, actions, claims, costs, damages, liabilities and expenses (including attorney’s fees and court costs) caused in whole or in part, or arising directly or indirectly out of any negligent act or omission or willful misconduct of Tenant or Tenant’s agents, employees, customers, invitees or contractors; or (iii) any breach by Tenant of its obligations under this Lease.

17. CASUALTY.

a. In case of damage to or destruction of the Building or the Premises by fire or other casualty, Tenant shall give immediate written notice to Landlord. In such event, Landlord may terminate this Lease upon written notice to Tenant within ninety (90) days of the date of such casualty. In the event Landlord does not elect to terminate this Lease, after receipt of sufficient insurance proceeds, Landlord shall restore, repair and rebuild the Premises as nearly as practical to the condition the Premises was in immediately prior to such casualty, and Base Rent shall equitably abate based on the nature and extent of the Premises so damaged from the date of the casualty until the date that the Premises is substantially repaired or restored. All insurance proceeds in connection with any casualty shall be payable to Landlord. In no event shall Landlord be required to repair or restore any damage to Tenant’s equipment, trade fixtures or other personal property.

b. Notwithstanding anything to the contrary contained in this Section 17, in the event the Building and/or the Premises are damaged by fire or other casualty, Landlord shall have the right to terminate this Lease upon thirty (30) days written notice to Tenant if (i) any lender holding a mortgage or deed of trust encumbering the Building or the Land requires that any portion of the insurance proceeds be applied to such indebtedness; (ii) a material portion of the Building or the Premises is damaged such that Landlord determines it would not be feasible to repair such damage; or (iii) Landlord does not (or will not (as determined by Landlord in its sole discretion) actually receive sufficient insurance proceeds to pay for all such repairs and restoration.

 

8


18. EMINENT DOMAIN. In the event all or any portion of the Building, Parking or the Premises is taken by eminent domain or pursuant to other governmental authority (including a deed in lieu thereof) (each, a “Taking”), then Landlord shall have the right to terminate this Lease upon written notice to Tenant given within sixty (60) days of the date of such Taking. If Landlord does not elect to terminate this Lease, Landlord, after receipt of the condemnation award, shall repair and restore the Premises as nearly as practical to the condition of the Premises immediately prior to such Taking (less the portion of the Premises so taken). In the event a portion of the Premises is taken, Base Rent shall equitably abate based on the nature and extent of the Premises so taken. Tenant shall have no claim against any award or proceeds for any such Taking, and Tenant hereby assigns all of its right and interest to such award and proceeds to Landlord, except that Tenant shall have the right to make a separate award for its moving expenses and trade fixtures, provided such award to Tenant does not diminish Landlord’s award. If any portion of the Premise, Tenant has the right to terminate the lease without notice.

19. SURRENDER.

a. Upon the expiration or earlier termination of this Lease, Tenant shall (i) quit and surrender the Premises to Landlord; (ii) remove from the Premises all of Tenant’s property and repair any damage caused by such removal; (iii) clean the Premises and restore them to their original condition, ordinary wear and tear excepted; and (iv) perform all other obligations required of Tenant under the terms of this Lease.

b. If Tenant fails to vacate the Premises upon the expiration or earlier termination of this Lease and no intent to hold over has been communicated in writing to the Landlord, then the Landlord may remove and/or store any such property at Tenant’s expense without liability to Tenant for any loss or damage thereto. If Tenant does not claim and take delivery of any of Tenant’s property that remains in the Premises or in storage within ten (10) days after the expiration or earlier termination of this Lease, including paying Landlord all amounts due under this Lease, including, without limitation, all costs of removal and storage of such property, Landlord may sell all or any portion of such property at a public or private sale after having given Tenant ten (10) days prior written notice. Landlord may apply the proceeds of such sale to the costs of removal, storage and sale of the property, and then to all amounts due Landlord under this Lease. Any amount remaining shall be paid to Tenant upon Tenant’s written demand, without interest.

20. HOLDING OVER. If Tenant holds over and remains in possession of the Premises beyond the expiration of the Term or other termination of this Lease, such holding over shall not be deemed or construed to be a renewal of this Lease, but shall constitute the creation of a month-to-month tenancy which may be terminated by either Landlord or Tenant upon thirty (30) days prior written notice the other party. By such holding over, Tenant shall be deemed to have agreed to be bound by the terms and conditions of this Lease, except that during such month-to-month tenancy, Tenant shall pay a monthly rental rate equal to one hundred twenty five

 

9


percent (125%) of the Rent for the immediately preceding month. Tenant shall indemnify Landlord for any costs and expenses incurred by Landlord as a result of any holdover by Tenant, including any costs or expenses incurred in connection with a successor tenant of the Premises.

21. DEFAULT.

a. The following events or occurrences shall constitute events of default by Tenant under this Lease (each, an “Event of Default”):

 

  i. Tenant’s failure to pay any installment of Base Rent, Additional Rent or other sum due hereunder within five (5) days of when due;

 

  ii. Tenant’s failure to perform any material covenant or condition of this Lease (except as set forth in (i) above) if such failure is not cured within thirty (30) days of Tenant’s notice of such default;

 

  iii. Tenant’s abandonment of the Premises, or removal of all or substantially all of Tenant’s possessions or property from the Premises;

 

  iv. Tenant’s general assignment of all or substantially all of its assets for the benefit of creditors; or

 

  v. Tenant’s filing a petition for relief of any kind under the provisions of Title 11 or Title 7 of the United States Code, as amended (the “Bankruptcy Code”), or an involuntary petition under the Bankruptcy Code is filed against Tenant, or a receiver or trustee is appointed for all or substantially all of Tenant’s assets.

b. Upon any Event of Default, in addition to any other rights and remedies under this Lease, at law or in equity, and with or without terminating this Lease, Landlord and its agents and representatives may exercise any or all of the following rights and remedies; (i) bring suit for the collection of any amounts for which Tenant may be in default, or for the performance of any covenant or agreement required to be performed by Tenant hereunder; (ii) terminate this Lease or terminate Tenant’s right to possession of the Premises, in which case Tenant shall pay Landlord upon demand for all damages suffered by Landlord as a result of such default, including, without limitation, all past due Rent, all Rent due under this Lease from the date of such termination until the earlier of the end of the Term or the date upon which the Premises is completely relet, and all costs and expenses incurred by Landlord in connection with reletting the Premises; and/or (iii) cure any such breach or default on behalf of Tenant, in which case Tenant shall pay Landlord upon demand for all the damages suffered by Landlord and for all the costs and expenses incurred by Landlord in curing such default. Notwithstanding anything to the contrary contained in this Lease, in the event of an emergency, Landlord shall have the immediate right to cure any such breach or default by Tenant prior to the expiration of the applicable notice and cure period if reasonably necessary to protect the Premises or the Building, to prevent injury or damage to persons or property or in the event of

 

10


any other emergency, and Tenant shall pay to Landlord all amounts expended by Landlord to cure such default within ten (10) days of written notice to Tenant of such amount. In the event Landlord shall terminate this Lease, Landlord shall have the right to relet the Premises to such persons and upon such terms as Landlord shall determine in its sole discretion, and Tenant shall pay Landlord upon demand all costs and expenses associated with such reletting, including, without limitation, attorneys’ fees, brokerage commissions and all costs and expenses for any alterations, improvements or upfitting performed to the Premises. Tenant shall also pay to Landlord all reasonable attorneys’ fees and court costs incurred by Landlord as a result of any default by Tenant hereunder. All amounts due from Tenant to Landlord hereunder shall bear interest at the lesser of ten percent (10%) per annum, compounded monthly, or the maximum interest rate allowable under law, until paid in full.

22. SUBORDINATION. Tenant’s interest under this Lease and in the Premises is and shall remain subordinate to every present and future mortgage, deed of trust or other security instrument encumbering the Building and/or the Premises and any extensions, modifications or renewals thereof, and to all advances made thereunder. This provision is self-operative; provided, however, fifteen (15) days after Landlord’s request, Tenant agrees to execute any additional documents as may be required by Landlord or by any third party (including any lender of Landlord), including any additional document_to evidence such subordination. If Tenant fails to execute any such document within fifteen (15) days of request, such failure shall constitute an Event of Default as set forth in Section 21. In the event Landlord sells or transfers the Premises, or in the event the Premises is acquired by any person or entity through a foreclosure sale (or deed in lieu thereof), then (i) Tenant agrees to attorn to such purchaser or transferee as Tenant’s landlord under this Lease,;(ii) Tenant agrees to continue to perform all of Tenant’s obligations under this Lease for such purchaser or transferee.; and (iii) Tenant shall look solely to such purchaser or transferee as the landlord under this Lease, and Landlord shall be released from all its liabilities and obligations hereunder, and Tenant’s remedies for any breach of this Lease shall be solely against such purchaser or transferee.

23. HAZARDOUS MATERIALS.

a. Throughout the Term, Tenant and its employees, agents, invitees, licensees or contractors shall not cause, permit or allow any substances, chemicals, materials or pollutants (whether solid, liquid or gaseous) deemed to be toxic or hazardous or the manufacture, storage, transport or disposal of which is regulated, governed, restricted or prohibited by any federal, state or local agency or authority, or under any federal, state or local law, ordinance, rule or regulation related to the environment, health or safety (collectively, the “Environmental Laws”), including, without limitation, any oil, gasoline, petroleum, petroleum by-products, asbestos or asbestos containing materials (collectively, the “Hazardous Materials”), to be handled, placed, stored, dumped, dispensed, released, discharged, deposited, manufactured, generated, treated, processed, used, transported or located on, in, under or about the Premises. Upon the expiration or earlier termination of this Lease, Tenant, at Tenant’s expense, shall remove all Hazardous Materials from the Premises, except to the extent placed upon the Premises by Landlord.

 

11


b. Tenant shall give Landlord immediate written notice of any problem, spill, discharge, threatened discharge or discovery of any Hazardous Materials on or about the Premises or claim thereof. If such problem, spill, discharge, threatened discharge or discovery was caused, in whole or in part, by Tenant or its employees, agents, contractors, invitees or licensees, such notice shall include a description of measures proposed to be taken by Tenant to contain and/or remediate the release of such Hazardous Materials and any resultant damage to or impact on property, persons and/or the environment (which term includes, without limitation, soil, surface water or groundwater). Upon Landlord’s approval and at Tenant’s own expense, Tenant shall promptly take all steps necessary to clean up and remediate any release of such Hazardous Materials, comply with all Environmental Laws and otherwise report and/or coordinate with Landlord and all appropriate governmental agencies.

c. Tenant agrees to indemnify, release and hold Landlord harmless from and against all Liabilities (as defined below) suffered by, incurred by or assessed against Landlord or its agents, employees, officers or representatives, whether incurred as a result of legal action taken by any governmental entity or agency, taken by any private claimant or taken by Landlord, as a result of the presence, disturbance, discharge, release, removal or cleanup of any Hazardous Materials upon or under, on or off site, associated with or flowing from the Premises. Tenant’s obligations and liabilities under this Section 23 shall survive the expiration or earlier termination of this Lease.

d. The term “Liabilities” as used herein is hereby defined as any and all liabilities, expenses, demands, damages (including punitive, exemplary and consequential damages), costs, cleanup costs, response costs, losses, causes of action, claims for relief, attorneys’ and other legal fees, other professional fees, penalties, fines, assessments and charges.

24. QUIET ENJOYMENT. Subject to the terms and conditions of this Lease, and provided Tenant is not in default hereunder, Landlord agrees that Tenant shall hold and enjoy the Premises throughout the Term, free from any interference.

25. NON-LIABILITY OF LANDLORD. Any judgment obtained by Tenant against Landlord with respect to this Lease shall be satisfied only against the equity interest of Landlord in the Premises. Landlord shall not be liable for any deficiency, and Tenant shall have no right to levy execution of such judgment against any property of Landlord other than its equity interest in the Premises, and in no event shall any officer, director, member, manager, agent or representative of Landlord have any personal liability with respect to this Lease.

26. LIENS. Tenant shall keep the Premises and Tenant’s leasehold estate free from any liens arising out of any work performed, material furnished or obligations incurred with respect to the Premises by Tenant. In the event any such lien is filed against the Premises, Tenant shall cause such lien to be discharged by payment or bonding off within ten (10) days notice of the filing of the lien, failing which Landlord may pay and discharge such lien and Tenant shall reimburse Landlord upon demand for all costs and expenses incurred by Landlord in paying and discharging such lien.

 

12


27. ENTRY. Landlord and its agents, representatives, employees and mortgagees may enter the Premises at all reasonable times with notice for the purpose of inspecting the Premises, performing alterations and repairs to the Premises or adjacent premises, exhibiting the Premises to prospective buyers, mortgages or tenants or for any other reasonable purpose. Any such entry by Landlord shall not materially, or unreasonably interfere with Tenant’s business and Tenant shall have the right to accompany the Landlord unless in the case of emergency.

28. SIGNAGE. Tenant shall have space on the external building stand up sign, on the suite door and on the building directory; provided any such signage shall comply with all applicable laws, ordinances and regulations.

29. ESTOPPEL. Tenant shall, from time to time, upon fifteen (15) days prior notice, deliver to Landlord or its designee, a written statement certifying the following: (i) this Lease is unmodified and is in full force and effect; (ii) the amount of Rent then payable under this Lease and the date to which Rent has been paid; (iii) there are no defaults under this Lease by Landlord or Tenant, or a detailed description of such default; (iv) Tenant is in possession of the Premises; and (v) any other information reasonably requested. If Tenant shall fail to execute such document within ten (10) days of request, Tenant shall be deemed to have approved such document and all the information contained therein.

30. SECURITY DEPOSIT. Simultaneously with the execution of this Lease, Tenant shall deposit with Landlord the sum of $ $4,972.50 (“Security Deposit”) as security for the performance by Tenant of all the terms, covenants and conditions of this Lease upon Tenant’s part to be performed. The Security Deposit shall be returned to Tenant sixty (60) days after the expiration or earlier termination of this Lease, provided Tenant has fully performed all obligations to be performed by Tenant hereunder and no default by Tenant exists hereunder. Landlord, without prejudice to any other remedy, shall have the right to apply all or any part of the Security Deposit to cure any default of Tenant. If Landlord so uses any part of the Security Deposit, Tenant shall, upon demand, deposit with Landlord the amount so applied so that Landlord shall have the full Security Deposit on hand at all times during the Term. In the event of a sale of the Premises, Landlord shall have the right to transfer or credit the Security Deposit to the purchaser of the Premises. Landlord shall thereupon be released from all liability for the return of the Security Deposit and Tenant shall look solely to the new landlord for the return of the Security Deposit. The Security Deposit shall not be assigned or encumbered by Tenant without the prior written consent of Landlord. The Security Deposit shall bear interest which will be paid to the Landlord to cover expenses of maintaining the Security Deposit Account and the security deposits may be commingled with other funds of Landlord. The Security Deposit is not an advance rental deposit or a measure of Landlord’s damages in the event of Tenant’s default under this Lease.

31. LANDLORD’S LIEN. In addition to any statutory lien in Landlord’s favor, Tenant hereby grants to Landlord a continuing security interest for the timely payment of all Base Rent, Additional Rent and other sums of money becoming due hereunder from Tenant and for the timely performance of all of Tenant’s other obligations hereunder, upon all goods, wares, equipment, fixtures, furnishings, furniture, inventory, and other personal property of Tenant which are or may be put into the Premises during the Term

 

13


and all proceeds of the foregoing, and such property shall not be removed from the Premises during the Term without the consent of Landlord other than in the ordinary course of business. Upon the occurrence of an Event of Default under this Lease, Landlord shall have, in addition to any other remedies provided herein or at law, all rights and remedies of a secured creditor under the Uniform Commercial Code, as adopted in North Carolina, including, without limitation, the right to sell the property described in this Section 31 at public or private sale upon ten (10) days written notice to Tenant, and Landlord shall have the right to become the purchaser of such property, upon being the highest bidder at the sale. Tenant agrees to execute and deliver to Landlord, and authorizes Landlord to prepare and record in the appropriate recording offices, financing statements or other necessary documents requested by Landlord to effect and/or perfect such security interest, and Tenant agrees that this Lease may be recorded by Landlord in the appropriate recording offices as a financing statement. Any statutory lien for rent is not hereby waived, the express contractual lien herein granted being in addition and supplementary thereto.

32. NOTICES. All notices, requests and communications given pursuant to the terms of this Lease shall be in writing, and given by: a) registered or certified U.S. mail, postage prepaid, return receipt requested, b) hand delivery or c) national overnight delivery service, and in all cases sent to the following addresses:

 

To Landlord:    Floyd Smith Office Park, LLC   To Tenant:    Nexxus Lighting
   125 Floyd Smith Dr., Suite 280      124 Floyd Smith Dr., Ste. 300
   Charlotte, NC 28075      Charlotte, NC 28262
   Attn: Susan Rourke      Attn: Mike Bauer
   with a copy to:     
   Parker, Poe, Adams & Bernstein L.L.P.     
   401 S. Tryon Street     
   Suite 3000     
   Charlotte, NC 28202     
   Attn: Craig T. Lynch, Esq.     

All such notices, requests and communications shall be deemed given upon the earlier of (i) actual receipt, or (ii) three (3) business days after deposit with the U.S. Mail or national overnight delivery service (as applicable). Either party may designate a different address by written notice given to the other in accordance with this Section 32.

33. NOTICE REQUIREMENT REGARDING MOLD. If at any point during the Term of this Lease, Tenant sees, discovers or detects the presence of mold in or about the Premises, Tenant shall promptly deliver written notice thereof to Landlord, In the event that as a result of the presence of mold in or about the Premises, any repair or maintenance is required because of any act of Tenant or its employees, agents, invitees or representatives, then Tenant shall pay Landlord upon demand all costs and expenses incurred by Landlord in performing such repairs or maintenance.

 

14


34. RIGHTS RESERVED TO LANDLORD. Landlord shall have the following rights exercisable without notice and without liability to Tenant for damage or injury to property, person or business (all claims for damage being hereby waived and released by Tenant) and without effecting an eviction or disturbance of Tenant’s use or possession of the Premises or giving rise to any claim for set-offs or abatement of Rent:

a. To install and maintain signs on the exterior and interior of the Building;

b. To designate all sources furnishing sign painting and lettering, towels, coffee cart service, vending machines or toilet supplies used or consumed in the Premises and the Building;

c. To have pass keys to the Premises;

d. To grant to anyone the exclusive right to conduct any business or render any service in the Building, provided such exclusive right shall not operate to exclude Tenant from the use expressly permitted by this Lease;

e. To have access to all mail chutes or boxes according to the rules of the United States Postal Service;

f. To require all persons entering or leaving the Building during such hours as Landlord may from time to time determine in its sole discretion to identify themselves to security personnel by registration or otherwise, and to establish such persons’ right to enter or leave the Building, and to exclude or expel any peddler, solicitor or beggar at any time from the Premises or the Building; and

g. To close the Building at 6:00 p.m. on weekdays, and all day on Saturdays, Sundays and business holidays, or at such other times as Landlord may determine in its sole discretion, subject, however, to Tenant’s right to admittance under such rules and regulations as shall be prescribed from time to time by Landlord in its sole discretion.

35. MISCELLANEOUS.

a. Accord and Satisfaction. No payment by Tenant or receipt by Landlord of a lesser amount than any installment or payment of Rent due shall be deemed to be other than on account of the amount due, and no endorsement or statement on any check or payment of Rent shall be deemed an accord and satisfaction.

b. Attorneys’ Fees. If any action is taken to enforce any provision of this Lease, prevailing party shall be entitled to recover from the other its reasonable attorneys’ fees and all costs incurred in such enforcement.

 

15


c. Authority. Each of the persons executing this Lease on behalf of Tenant does hereby covenant and warrant that Tenant is a duly authorized and existing corporation, limited liability company or partnership, as the case may be, that Tenant has and is qualified to do business in the State where the Premises are located, that Tenant has full right and authority to enter into this Lease and that each and all of the persons signing on behalf of Tenant are authorized to do so. Upon Landlord’s request, Tenant shall provide Landlord with evidence reasonably satisfactory to Landlord supporting the foregoing representations.

d. Brokers. Landlord and Tenant each represent and warrant to the other that they have not dealt with any real estate agent or broker in connection with this transaction, other than CB Richard Ellis whose commission shall be payable by Landlord. Landlord and Tenant each hereby indemnify and save the other harmless from and against all loss, cost and expense incurred by reason of a breach of such representation or warranty.

e. Counterparts. This Lease may be executed in two (2) or more counterparts with all being deemed collectively as one (1) lease.

f. Cumulative Remedies. All rights and remedies of Landlord created under this Lease or rights and remedies otherwise existing at law or in equity are cumulative, and the exercise of one or more rights or remedies shall not be taken to exclude or waive the right to the exercise of any other.

g. Entire Agreement. This Lease represents the entire agreement between Landlord and Tenant with respect to the Premises, and all prior and contemporaneous discussions and documents are superseded by this Lease. Any statement or representation not contained herein shall not be binding on either party. All subsequent amendments hereto must be in writing and signed by the parties hereto.

h. Force Majeure. Whenever a period of time is herein prescribed for the taking of any action by either party, neither party shall not be liable or responsible for, and there shall be excluded from the computation of such period of time, any delays due to acts of God, strikes, accidents, casualties, shortage of materials or supplies, labor disputes, wars, riots, storms or any other cause whatsoever beyond the reasonable control of said party (“Force Majeure”).

i. Governing Law. This Lease shall be construed and enforced in accordance with the laws of the State in which the Premises are located.

j. Invalidity. The invalidity or unenforceability of any term herein shall not affect the validity or enforceability of any other term.

k. Memorandum. This Lease shall not be filed or recorded on the public record; provided, however, a memorandum thereof may be recorded at Tenant’s sole cost upon prior written consent of Landlord.

 

16


l. Non-Waiver. No right or remedy under this Lease shall be waived unless the waiver is in writing and signed by the party claimed to have made the waiver, and such waiver shall not be interpreted as a continuing waiver.

m. Successors and Assigns. This Lease shall inure to the benefit of, and shall be binding upon, the parties hereto and their respective successors and assigns.

n. Time. Time is of the essence in each and every provision regarding either party’s performance under this Lease.

36. -EFFECT OF DELIVERY. Landlord has delivered a copy of this Lease to Tenant for Tenant’s review only, and the delivery hereof does not constitute an offer to Tenant. This Lease shall not be effective until a copy executed by both Landlord and Tenant is delivered to and accepted by Landlord.

IN WITNESS WHEREOF, Tenant and Landlord duly execute this Lease as of the day and year first above written.

 

Witness     LANDLORD:
      By:   SONIC FINANCIAL CORP, PTNR
By:  

/s/ Susan Rourke

    By:  

/s/ LOGO

  9/17/07     Title:   VP
      Date:   9/17/07
Witness     TENANT:
By:  

 

    By:  

/s/ LOGO

      Title:   PRESIDENT - CEO
      Date:   8/27/07

 

17


EXHIBIT A

LEGAL DESCRIPTION OF LAND

Lying and being in the Mallard Creek Township, Mecklenburg County, North Carolina and lying to the northwest of US Highway 29 (120’ .public right-of-way) and lying to the northeast of Floyd Smith Office Park Drive (60’ public right-of-way, Map Book 37, Page 495) and being the property of Floyd Smith Office Park, LLC (:Deed Book 12361, Page 859, Lot I, Map Book 37, Page 495) and being more particularly described as follows:

BEGINNING at an existing #4 rebar at the intersection of the right-of-way margins of US Highway 29 and Floyd Smith Office Park Drive; thence with the right-of-way margin of Floyd Smith Office Park Drive the following six courses and distances: ]) with the arc of a curve to the right having a radius of 30.00 feet, an arc length of 44.91 feet, and a chord bearing and distance of N 85°34’50” W 40.83 feet to an existing #4 rebar; 2) N 42°41’42” W 261.54 feet to an existing #4 rebar; 3) with the arc of a curve to the left having a radius of 530.00 feet, an arc length of 124.33 feet, and a. chord bearing and distance of N 49°24’56” W 124.05 feet to an existing bent #4 rebar; 4) N 56°08’10” W 329.90 feet to a point; 5) with the arc of a curve to the right having a radius of 470.00 feet, an arc length of 114.70 feet and a chord bearing and distance of N 49°08’41” W 114.42 feet to a point; 6) N 38°41’27” W 56.16 feet to a point, a corner of Floyd Smith Office Park, LLC (Deed Book 12361, Page 859, Lot 3, Map Book 37, Page 495); thence with Floyd Smith Office Park, LLC. N 42°09’11” W 45.66 feet; thence with Floyd Smith Office Park, LLC and along a creek the following fifteen courses and distances:

1) N 42°22’13” E 41.53 feet to a point; 2) N 00°28’28” W 50.17 feet to a point; 3) N 06°03’37” E 37.32 feet to a point; 4) N 34°44’08” E 77.34 feet to a point; 5) N J 8°44’30” E 80.69 feet to a point; 6) N 5050 degrees 31’32” E 19.62 feet to a point; 7) N 07°04’39” E 38.96 feet to a point; 8) N 60°01’13” E 38.29 feet to a point; 9) N 20°31’13” E 44.96 feet to a point; 10) N 27°08’12” E 34.83 feet to a point; 11) N 40°42’05” E 28.64 feet to a point; 12) N 53°25’49” E 41.71 feet to a point; 13) N 12°52’32” E 19.66 feet to a point; 14) N 07°45’01” W 30.04 feet to a point; 15) N 46°18’25” E 25.63 feet to a point in the line of P.M. Christenbury 8r. wife Henrietta C. Christenbury (Deed .Book 5208, Page 974); thence with the line of Christenbury S 50°51’07” E 1203.89 feet to an existing iron pin in the northwestern right-of-way margin of US Highway 29; thence with the right-of-way margin of US Highway 29 the following two courses and distances: 1) S 50°46’55” W 464.14 feet to un existing  1/2” rod; 2) S 51°39’45” W 118.37 feet to the point of BEGINNING, containing 14.311 acres.

 

18


EXHIBIT B

FLOOR PLAN OF PREMISES

LOGO

 

19


EXHIBIT C

RULES AND REGULATIONS

1. Sidewalks, doorways, vestibules, halls, stairways and similar areas shall not be obstructed nor shall refuse, furniture, boxes or other items be placed therein by Tenant or its officers, agents, servants, and employees, or used for any purpose other than ingress and egress to and from the Premises, or for going from one part of the Building to another part of the Building. Canvassing, soliciting and peddling in the Building are prohibited.

2. Plumbing systems, fixtures and appliances shall be used only for the purposes for which constructed, and no unsuitable material shall be placed therein.

3. No signs, directories, posters, advertisements or notices shall be painted or affixed on or to any of the windows or doors, or in corridors or other parts of the Building, except in such color, size, and style, and in such places, as shall be first approved in writing by Landlord in its sole discretion. Building standard suite identification signs shall be prepared by Landlord at Tenant’s expense. Landlord shall have the right to remove all unapproved signs without notice to Tenant, at the expense of Tenant.

4. Tenants shall not do, or permit anything to be done, in or about the Building, or bring or keep anything therein, that will in any way increase the rate of fire or other insurance on the Building, or on property kept therein or otherwise increase the possibility of fire or other casualty.

5. Landlord shall have the power to prescribe the weight and position of heavy equipment or objects. All damage done to the Building by the improper placing of such heavy items will be repaired at the expense of Tenant.

6. Tenant shall notify the Building manager when safes or other heavy equipment are to be taken in or out of the Building, and the moving shall be done after written permission is obtained from Landlord on such conditions as Landlord shall require.

7. Corridor doors, when not in use, shall be kept closed.

8. All deliveries must be made via the service entrance and service elevator, when provided, during Normal Business Hours. Landlord’s written approval must be obtained for any delivery during non-Normal Business Hours.

9. Tenant shall cooperate with Landlord’s employees in keeping the Premises neat and clean and in the performance of janitorial service to the Premises.

10. Tenants shall not cause or permit any improper noises in the Building, or allow any unpleasant odors to emanate from the Premises, or otherwise interfere, injure or annoy in any way other tenants in the Building or their invitees, customers, guests and employees.

 

20


11. No animals shall be brought into or kept in or about the Building.

12. No machinery of any kind, other than ordinary office machines such as typewriters, information processing systems, copy machines, communications equipment and calculators, shall be operated on the Premises without the prior written consent of Landlord, not shall a Tenant use or keep in the Building any inflammable or explosive fluid or substance (including Christmas trees and ornaments), or any illuminating materials. No space heaters or fans shall be operated in the Building.

13. No bicycles, motorcycles or similar vehicles will be allowed in the Building.

14. No nails, hooks, or screws shall be driven into or inserted in any part of the Building, nor shall Tenant perform any boring, cutting or installation of any wirings in any part of the Building, without the prior written approval of Landlord.

15. Landlord has the right to evacuate the Building in the event of an emergency or catastrophe.

16. No food and/or beverages shall be distributed from Tenant’s office without the prior written approval of the Landlord; provided that Tenant may prepare coffee and similar beverages and warm typical luncheon items for the consumption by Tenant’s employees and invitees,

17. No additional locks shall be placed upon any doors without the prior written consent of Landlord. All necessary keys shall be furnished by Landlord. Tenant shall make duplicates of the keys for the Premises without the consent of Landlord. Additional keys shall be obtained only from Landlord, at a reasonable, competitive fee to be determined by Landlord.

18. Tenants will not locate equipment, cabinets or furniture adjacent to mechanical or electrical access panels or over air conditioning outlets so as to prevent Landlord’s personnel and employees from servicing such units. All costs of moving such equipment, cabinets or furniture for Landlord’s access will be at Tenant’s expense.

19. Tenant shall comply with such parking rules and regulations as may be posted and distributed from time to time by Landlord.

20. No portion of the Building shall be used for lodging rooms, gambling or any illegal, immoral or improper purpose.

21. Tenant shall not install any window shades, blinds, drapes or any other window treatment of any kind whatsoever without Landlord’s prior written consent.

22. Landlord reserves the right to rescind any of these Rules and Regulations, and make such other and further Rules and Regulations as it deems necessary from time to time for the benefit of the Building, which Rules and Regulations shall be binding upon Tenant.

 

21